### 正元5.0管线绘图工具
#### 与CAD2008无缝对接
这款软件能够完美地与AutoCAD 2008版本相配合工作,为用户提供了一个高效的设计平台。
#### 不受操作系统限制的免狗激活方式
无论是Windows还是Mac OS等其他操作系统,该程序都能流畅运行,并且无需额外硬件锁即可激活使用。
#### 可无限次安装
用户可以根据需要在不同计算机上多次安装本软件,没有次数和系统类型的限制。
#### 多种实用功能集成
- **绘制管道布局**:快速准确地创建复杂的地下管网图形。
- **内部错误检查**:自动识别并标记设计中的潜在问题区域。
- **管道长度及数量统计**:轻松计算出项目中所有管道的具体尺寸信息。
#### 高级特性一览
- 对比分析埋设深度标记,提高准确性。
- 内置错误检测机制,确保设计无误。
- 管道交叉冲突分析,预防施工时可能出现的问题。
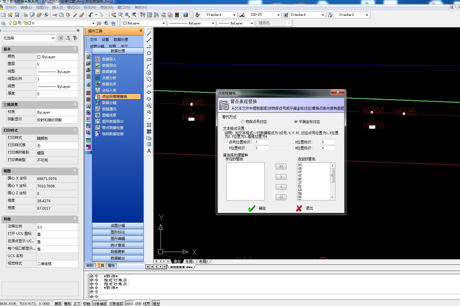
- 坐标点展示功能,方便定位重要位置。
- 替换指定点的坐标或高度值。
- 导出存储于数据库内的坐标文件。
- 按需调整成果表格顺序。
- 物理探测数据分析模块,增强项目安全性。
#### 注意事项
后不予退款,请谨慎考虑后再做决定。
对于方面我们不接受议价,直接下单即可。
本产品仅供个人学习研究之用,严禁用于商业目的。
若需将其应用于商业项目,请务必前往官方网站购置正版授权。
任何因未经授权商用而产生的法律纠纷及其版权争议均与我方无关。
完成后,请您在24小时内删除原始安装包以示尊重知识产权。










发货方式
自动:在特色服务中标有自动发货的商品,拍下后,源码类 软件类 商品会在订单详情页显示来自卖家的商品下载链接,点卡类 商品会在订单详情直接显示卡号密码。
手动:未标有自动发货的的商品,付款后,商品卖家会收到平台的手机短信、邮件提醒,卖家会尽快为您发货,如卖家长时间未发货,买家也可通过订单上的QQ或电话主动联系卖家。
退款说明
1、源码类:商品详情(含标题)与实际源码不一致的(例:描述PHP实际为ASP、描述的功能实际缺少、功能不能正常使用等)!有演示站时,与实际源码不一致的(但描述中有"不保证完全一样、可能有少许偏差"类似显著公告的除外);
2、营销推广类:未达到卖家描述标准的;
3、点卡软件类:所售点卡软件无法使用的;
3、发货:手动发货商品,在卖家未发货前就申请了退款的;
4、服务:卖家不提供承诺的售后服务的;(双方提前有商定和描述中有显著声明的除外)
5、其他:如商品或服务有质量方面的硬性常规问题的。未符合详情及卖家承诺的。
注:符合上述任一情况的,均支持退款,但卖家予以积极解决问题则除外。交易中的商品,卖家无法修改描述!
注意事项
1、在付款前,双方在QQ上所商定的内容,也是纠纷评判依据(商定与商品描述冲突时,以商定为准);
2、源码商品,同时有网站演示与商品详情图片演示,且网站演示与商品详情图片演示不一致的,默认按商品详情图片演示作为纠纷评判依据(卖家有特别声明或有额外商定的除外);
3、点卡软件商品,默认按商品详情作为纠纷评判依据(特别声明或有商定除外);
4、营销推广商品,默认按商品详情作为纠纷评判依据(特别声明或有商定除外);
5、在有"正当退款原因和依据"的前提下,写有"一旦售出,概不支持退款"等类似的声明,视为无效声明;
6、虽然交易产生纠纷的几率很小,卖家也肯定会给买家最完善的服务!但请买卖双方尽量保留如聊天记录这样的重要信息,以防产生纠纷时便于送码网快速介入处理。
淘好品声明
1、作为第三方中介平台,依据双方交易合同(商品描述、交易前商定的内容)来保障交易的安全及买卖双方的权益;
2、平台上所有的资源都是亲测无误的,在平台下单安全有保障,有任何问题,可以随时联系在线客服。
测绘眼镜蛇数字水准仪数据仿真与处理4.2.2,无需激活版。天宝DINI...¥37.99
记账本工具小程序源码出售 作者直供 支持自主运营与部署...¥118.88
Unity2022开发的美食小当家游戏源码,高画质烹饪模拟,操作简易适...¥68.8
海康威视摄像头局域网自动发现工具|免IP一键登录画面查看器...¥31.8
苹果iPhone解锁工具UnlockGo 6.0 Windows中文版...¥29.00
从新手到专家:全面掌握ArcGIS模型构建器教程+实用工具+学习资源...¥28.8
三相电流型PWM整流器的仿真与控制策略...¥40.00
PHP多语言跨境电商商城源码 支持商品采集与商家入驻功能...¥90.9
FastAdmin扫码报修系统1.1.0|售后维修小程序...¥68.88
学法减分专业版小程序源码,含30000+题库与多套UI模板...¥129.00
特色农产品团购微信小程序源码(SpringBoot+Vue前后端分离)...¥89.00
Funcode部落远征小游戏C语言源码 适合学习与实践...¥65.00
基于C#开发的上位机自动化测试平台源码,支持二次开发与开源扩展...¥90.00
自动发送高德POI数据获取【即时发货】最新城市POI信息 高德提取...¥31.88
iReaShare安卓助手正版注册码获取指南...¥30.00
(即刻发货)外星人直播助手软件月卡...¥29.9
联想SN码修改工具:免拆BIOS写入序列号...¥35.00
金橙子打标机技术支持与EZcad软件版本更新...¥49.9